

















Objektdaten: 35230
| Objektart: | Einfamilienhaus mit Vollkeller | Etage: | 2 |
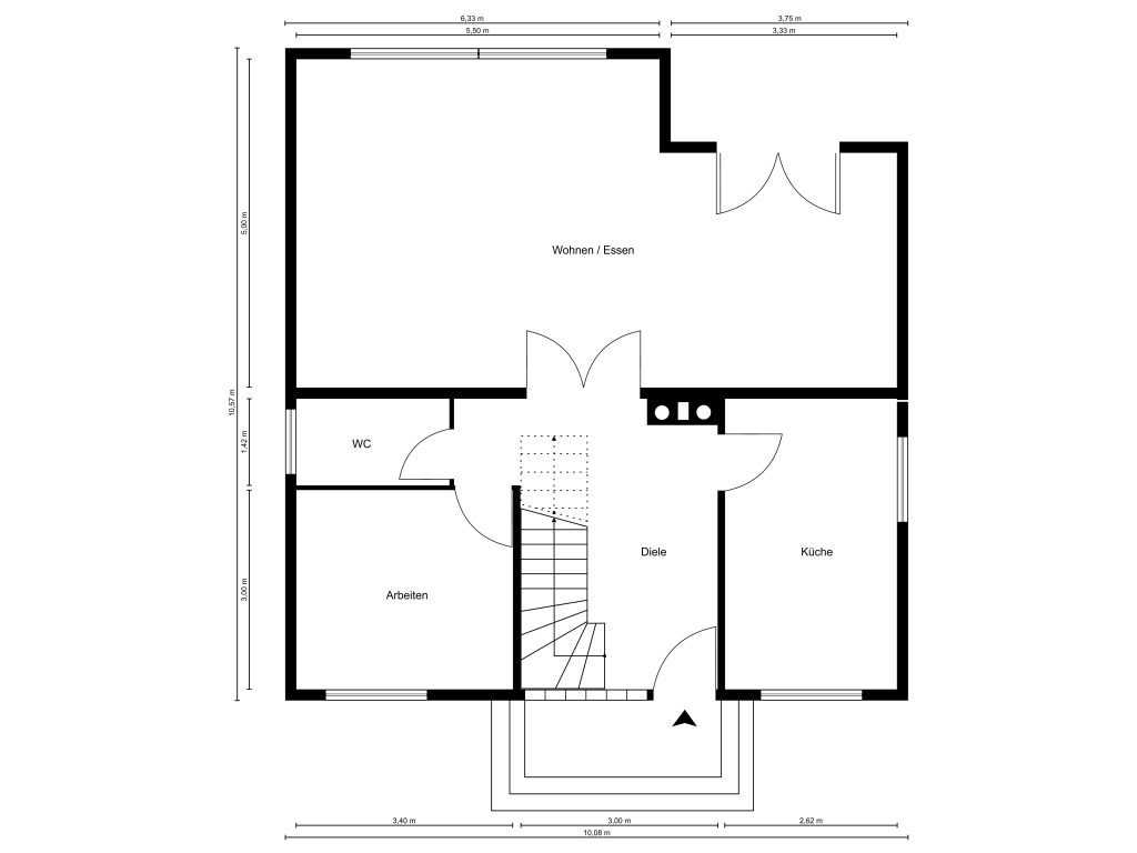
| Zimmer: | 5 | Geschosse: | 1,5 |
| Wohnfläche: | ca. 122m² | Terrasse: | 1 |
| Badezimmer: | 2, Vollbad m. Fenster – DG + Gäste-WC – EG | ||
| Grundstück: | ca. 695m². | Keller: | Vollkeller ca. 75m² |
| Baujahr: | 1978 | Heizungsart: | Ölzentralheizung, ca. 4.500l |
| Zustand: | Sehr gepflegt | Garage: | 1 |
| Hausgeld: | – | Gartennutzung: | ja |
| Miete zzgl. NK: | – | Endenergiebed: | |
| Objekt vermietet: | – | Energieausweis | Folgt |
| Kaufpreis: | 599.000,- EURO | Bezugsfrei: | Nach Vereinbarung |
Adresse:
21509 Glinde
Ansprechpartner:
Name: Ihr IBS-Team
Tel.: 040 – 711 40-585/586
E-Mail: info@ibs-hh.com
Objektbeschreibung:
Herzlich willkommen in diesem Familienhaus!
Dieses in massiver Bauweise errichtete Haus bietet vom Wohn- und Essbereich nicht nur einen traumhaften Blick in den sonnigen Garten, sondern auch viel Potential. So können die fünf Räume auf zwei Wohnebenen vielfältig genutzt werden und geben auch der großen Familie oder dem Paar mit Homeoffice viel Freiraum.
Aber schauen Sie selbst.
Ausstattung:
Eine Immobilie, die viel Freiraum und individuelles Wohnen ermöglicht. Hier fühlt sich die Familie, die Wert legt auf großzügiges Wohnen – als auch ein Paar mit Homeoffice und gern gesehenen Gästen wohl.
Ihre Vorteile auf einen Blick:
- Wohn – Essbereich mit Kaminofen
- Arbeits-/ Gästezimmer im EG
- Gäste-WC im EG
- großes Wohlfühlbad mit Dusche, Wanne, 2 WT und Fenster (im DG)
- Vollkeller, z. T. beheizt
- Ölheizung
- Aussenrollläden EG + DG 2 Fenster
- Abstellfläche im Spitzboden
- Garage +
- Div. PKW-Stellplätze auf dem Grundstück
- Gartenhaus
- Einkaufsmöglichkeiten sind schnell erreichbar
- alle Schulformen mit dem Fahrrad gut zu erreichen
- verkehrsgünstige Lage mit sehr guter Nahversorgung
Einfach nur einziehen und wohlfühlen
Lage:
Glinde liegt im Süden Schleswig-Holsteins, im Kreis Stormarn und in östlicher Randlage zur Freien und Hansestadt Hamburg. Der nahe idyllische Mühlenteich, das Biotop „um die Ecke“ und das viele Grün der Umgebung bieten mit seinen Wander- und Radwegen Erholung pur. Glinde bietet neben den sehr guten Einkaufsmöglichkeiten und dem beliebten Wochenmarkt, jegliche Schulformen, diverse Kindergärten, Ärzte und Behörden.
Die öffentlichen Verkehrsmittel verbinden Glinde mit der Metropolregion Hamburg und den angrenzenden Regionen durch zahlreiche Buslinien (Bus 133, 333) Von der nahen U2 – Steinfurther Allee benötigen Sie ca. 20 Minuten bis in die Hamburger Innenstadt.
Sonstiges: Als Käufer zahlen Sie für dieses Angebot keine Provision. So ist es bei allen Angeboten von IBS-Immobilien-Beratungsservice. Wenn Sie weitere Informationen wünschen, teilen Sie uns bitte Ihre Anschrift, Ihre Telefonnummer sowie Ihre E-Mail-Adresse mit. Vielen Dank.
Besichtigungstermin: Rufen Sie uns einfach unter Tel.: 040 – 711 40-585 an oder schicken Sie uns eine E-Mail. Sie hören umgehend von uns und können einen Besichtigungstermin vereinbaren.
IBS – IMMOBILIEN-BERATUNGSSERVICE
Tel.: (0 40) 7 11 40 585
E-Mail: Kontakt
Hinweis: Alle in diesem Exposé genannten und dargestellten Angaben stammen vom Verkäufer / Vermieter der Immobilie. Eine Haftung für die Richtigkeit übernimmt IBS – IMMOBILIEN-BERATUNGSSERVICE nicht.
Kontaktformular
Bitte Objekt-Nr. im Betreff eingeben:
Objekt-Nr: 35230
